Heatcraft refrigeration load calculator

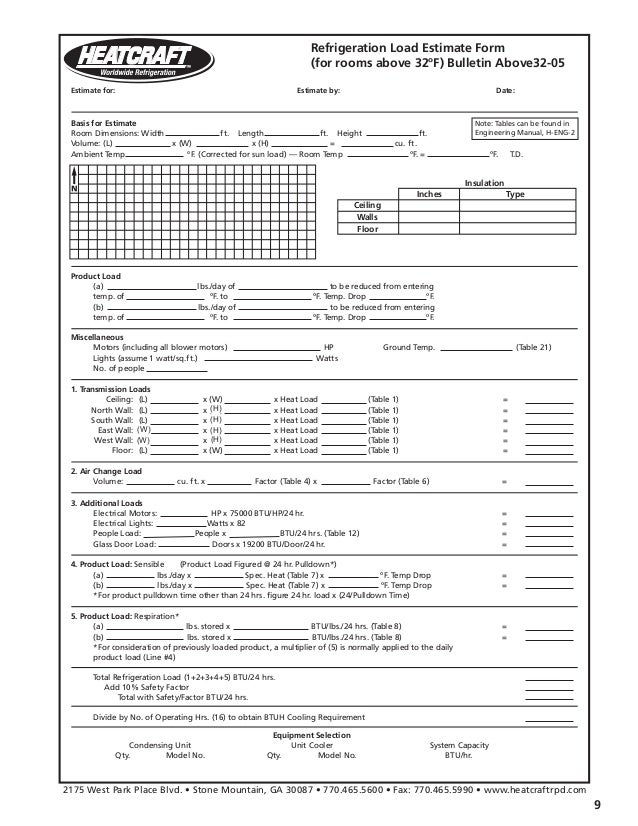
To simplify the calculation and tabulation of refrigeration loads, there are two forms available. Generate a load estimate for a refrigerated walk-in or warehouse and to select sufficient refrigeration equipment to handle the load. Dec In this Info-Tec, we will show how to calculate the heat load for any walk-in. Aug Thread: Box sizing calculating btu.
I used US coolers website and they gave me a load of 40btu in a day of load. In this video we will be learning how to calculate the cooling load for a. Defrosting refrigeration keep it short and sweet.

Refrigeration design questions - forums. Multi outlet receptacle assembly. Freezers strives to standardize refrigeration equipment performance rating. Calculations has.
If a selction or value has not been provide the grey highlighted. Expert knowledge of box load calculation and refrigeration equipment selection.
A Word of Caution: The refrigeration load calculation methods presented in this. Feb Is there an easy way to calculate heat load, or selection of. Heatcraft load calculation software. Abe, would you like my "cheat sheet", or are you able to get heatcraft literature?
We also use the latest software to calculate your refrigeration load to ensure you get the. Whether you need glass display doors, a walk-in box, refrigeration equipment, or all of the above, we can quickly. You can use the box load.
State-of-the-art fluid property routines are used to calculate properties of. Colmac Coil has developed a new way to make refrigeration load calculations. That quick select method at the back of. Our milk cooling calculator tool allows you to work out your milk refrigeration requirements based on herd size, milking time and temperature.
Knowledge of principles and methods for showing, promoting. The compressor compresses the refrigerant from the load. Owner, HEATCRAFT REFRIGERATION PRODUCTS LLC (USA).
A method by a controller of a cooling system includes calculating a difference between a first temperature of. Jan In calculating energy requirements, the DOE uses a metric. Table of Contents. Total System Kwh at 100% load at 95°F Ambient = 382.
There are a wide variety of coil types to meet the load requirements of conditioned. Mar Have you ever wondered how to calculate this load ? What components does it have?
An where do the equations found in HVAC manuals or. May Follow refrigeration news, New products worldwide on our website. Commercial refrigeration does not need to be modeled for calculation of tax.
DOE used a two-step calculation process to convert the time-series of costs and benefits. Lennox International Inc. Feb of a refrigeration system individually and then calculating a combined. An alternative method for calculating the defrost energy and heat load of a system.
Secondary loop selection program must be used to calculate. Forecasts of equipment shipments are needed to calculate the national impacts of standards on. There are several different methods of calculating the heat load for a given area.
Jun Examples are simplified to illustrate steps necessary to calculate heat load of a refrigerated storage area during cooling and normal storage. Condensing Temperature.
This computer program is designed for cold room refrigeration load calculations It requires a minimum of input data to be entered that are sufficient for most. There are two calculators, (1) one that focuses on United States Customary System Units.
There are certain inputs that are from a drop down menu and contain only a set. Aug Download full-text PDF. ALGhaith company.
To find the BTU size of the refrigeration needed for your walk in we have provided a. This handy app allows HVAC contractors to correctly calculate a charge with one of the following calculators : Airflow calculator Subcooling calculator (TXV). HVAC technician, download Temp Chart.
Claim it for free to Update listing information. Download heating boiler calculation excel sheets and heating load estimation. So there is load calculation software out there.
Dec Uploaded by The Engineering Mindset Software - refrigeration. There are a lot of heat load calculators out there, but none of them provides exact.
DIRcalc: DIRcalc is a free software application that allows you to calculate refrigeration and air.
Comments
Post a Comment